enru

Vittoria Apuana, a pochi passi dal mare: una villa tra i pini secolari

Forte dei MarmiVittoria Apuana - Villa in vendita
2.800.000 €
Caratteristiche principali
500 m²
Superficie
6
Locali
8
Camere
10
Bagni
Descrizione
Forte dei Marmi – Vittoria Apuana | Villa 360 mq a 300 m dal mare

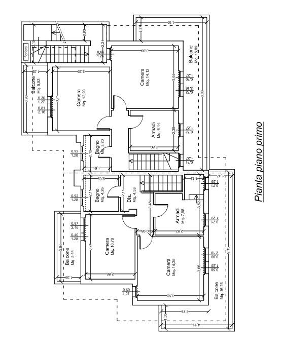
Proponiamo in vendita una villa di circa 360 mq, situata su un ampio lotto di circa 1.560 mq, a soli 300 metri dal mare, in un contesto tranquillo e prestigioso, circondato da pini secolari che regalano la tipica atmosfera di Forte dei Marmi.

Costruita negli anni ’70, la proprietà rappresenta una perfetta combinazione tra posizione e potenziale. È possibile procedere con demolizione e ricostruzione per realizzare una moderna villa singola con piscina, completamente personalizzabile secondo le esigenze dell’acquirente. L’ampia superficie del terreno consente di progettare un’abitazione di alto livello con grandi spazi esterni, giardino e area piscina riservata, ideale per chi desidera privacy e comfort a pochi passi dal mare.

In alternativa, la villa può essere ristrutturata mantenendo l’attuale struttura.

Per informazioni e visite: +39 335 596 9871.
Caratteristiche
Codice:
Star1
Città:
Forte dei Marmi (Vittoria Apuana)
Categoria:
Villa
Locali:
6
Camere:
8
Bagni:
10
Mq:
500
Posti auto:
4
Piano:
20
Classe energetica:
G
Stato Immobile:
Da Ristrutturare
Giardino:
Privato
Arredi:
Arredato
Tipo Cucina:
Abitabile
Accessori
Ingresso indipendente
Mappa
Via Raffaele de Grada n.32 - Forte dei Marmi (LU)
Agenti venditori
Sergey Bashkyrtsev
Sergey Bashkyrtsev
Agenti venditori
Liubov Shalaganova
Liubov Shalaganova
Richiedi informazioni
QR Code
QR Code
Cookie preference